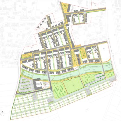
Marsillargues ZAC de la Laune : 10 hectares, 450 logements
LE DERNIER TERRAIN DE MARSILLARGUES
Dans un secteur où l’essentiel des terrains sont inconstructibles parce qu’en zone rouge du PPRI, le développement durable commence par une gestion économe du dernier foncier disponible. La zone rouge est utilisée pour accueillir dans un paysage très intégré à la campagne environnante des stationnements, des jardins familiaux et des espaces de promenade permettant d’optimiser le nombre de logements sur les terrains en zone bleue. L’enjeu était de produire un nombre important de logements tout en offrant une qualité d’usage et de paysage très forte. Le projet fait la part belle aux maisons de village qui se déclinent sur des parcelles très étroites afin de dégager, en profondeur, des cœurs d’îlots à la végétation luxuriante.
Un découpage parcellaire précis mais modulable et des propositions de plans d’aménagements visent à encadrer les futurs acquéreurs qui pourront construire eux-mêmes leurs maisons sans passer par des opérateurs. L’enjeu est d’obtenir de la diversité dans la cohérence. Par ailleurs, le projet utilise la contrainte de l’eau pour en faire le thème du projet.
Tout le plan paysager s’organise autour de cette idée de faciliter et de donner à voir l’écoulement des eaux, comme autrefois, par des noues, fossés et canelets, avant que tout les réseaux ne soient enterrés !
Notons enfin que les eaux de chaussées sont dépolluées par des plantes avant d’être rejetées et que les jardins familiaux sont arrosés en eau brute par un réseau spécifique.
Lauréat des écoquartiers Languedoc-Roussillon 2009
Commune de Marsillargues (34)
avec Mahaut Michez paysagiste
et SOTEC
Mission d’étude et de maîtrise d’œuvre
5 000 000 € HT de travaux
En cours
© photographies
d’une ville à l’autre…
















